市川市北国分2丁目 新築全2棟 B号棟 千葉県市川市北国分2丁目|5,180万円の新築一戸建て|株式会社優和住宅
| 価格 | 5,180万円 ![]() |
||||
|---|---|---|---|---|---|
| 所在地 | 千葉県市川市北国分2丁目
この地域周辺の物件を見る |
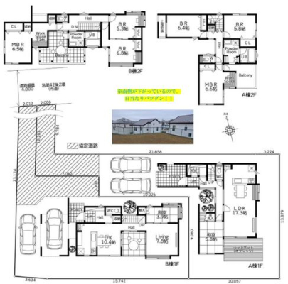
土地面積 | 219.43m² (66.37坪) | 建物面積 | 121.77m2 |
| 築年月 | 2026年11月築 | 間取り | 4LDK (-) | ||
| 交通 |
北総鉄道 北国分 徒歩12分
北総鉄道 矢切 徒歩14分 |
||||
| 特徴 |
|
|---|---|
| セールスコメント | 眺望良好な新築戸建て。風致地区ならではの閑静な住環境。並列2台分のカースペースを備えた広々60坪の敷地。採光を重視した陽当たり良好な間取りプランで使い勝手も良好です。前面道路は安心の公道面です |
| 採光面 | 南 | 構造/階数 | 木造/地上2階建 |
|---|---|---|---|
| 建ぺい率 | 40(%) | 容積率 | 80(%) |
| 駐車場 | 有 | 現況/引渡し | -/相談 |
| 土地権利 | 所有権 | 私道負担面積 | - |
| 接道状況 | 接道: 北 公道 道路幅: 4m | 用途地域 |
第一種低層住居専用地域
|
| セットバック | - | 法令上の制限 | - |
| 地目 | 山林 | 地勢 | |
| 建築確認番号 | 千建住第252388号 | 都市計画 | 市街化区域 |
| 取引態様 | 仲介 | ||
| 情報更新日 | 2026年05月21日 | 次回更新日 | 2026年06月04日 |
| 小学校区 | 市川市立国府台小学校 (千葉県市川市) 千葉県市川市立国府台小学校学区の他の物件を見る |
中学校区 | 第一中学校 (千葉県市川市) 千葉県市川市立第一中学校学区の他の物件を見る |
|---|
| 価格 | 万円 | ||
|---|---|---|---|
| 年利率 | % |
||
| ボーナス払い | 返済年数 | ||
| 頭金 | 直接入力する | 万円 | |

毎月のご返済額 |
ボーナス(×年2回) |
物件価格5,180万円 |
![]() |
![]() |
市川市北国分2丁目
5180万円 |
◆北総線「北国分」駅徒歩12分の立地
◆210平米を超える大型敷地
◆並列カースペース2台分