市川市曽谷8丁目 中古住宅 千葉県市川市曽谷8丁目|4,780万円の中古一戸建て|株式会社優和住宅
| 価格 | 4,780万円 ![]() |
||||
|---|---|---|---|---|---|
| 所在地 | 千葉県市川市曽谷8丁目
この地域周辺の物件を見る |
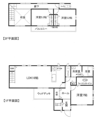
土地面積 | 161.98m² (48.99坪) | 建物面積 | 101.19m2 |
| 築年月 | 2018年5月築 | 間取り | 3LDK (-) | ||
| 交通 |
JR総武線 市川 バス13分 曽谷春雨橋 停歩4分
京成本線 市川真間 バス11分 曽谷春雨橋 停歩4分 |
||||
| 特徴 |
|
|---|---|
| セールスコメント | 敷地48坪でBBQ等が楽しめる築浅住宅!陽当りが良く明るいリビング18帖!お子様も安心な車通りが少ない住宅地です!小、中学校5分以内♪外環道路が開通して車でのアクセスが良くなりました! |
| 採光面 | 南東 | 構造/階数 | 木造/地上2階建 |
|---|---|---|---|
| 建ぺい率 | 50(%) | 容積率 | 100(%) |
| 駐車場 | 有 | 現況/引渡し | 空家/即時 |
| 土地権利 | 所有権 | 私道負担面積 | - |
| 接道状況 | 接道: 南西 公道 道路幅: 6m | 用途地域 |
第一種低層住居専用地域
|
| セットバック | なし | 法令上の制限 | 景観法 |
| 地目 | 宅地 | 地勢 | 平坦 |
| 建築確認番号 | 都市計画 | 市街化区域 | |
| 取引態様 | 仲介 | ||
| 情報更新日 | 2026年04月30日 | 次回更新日 | 2026年05月14日 |
| 小学校区 | 市川市立曽谷小学校 (千葉県市川市) 千葉県市川市立曽谷小学校学区の他の物件を見る |
中学校区 | 東国分中学校 (千葉県市川市) 千葉県市川市立東国分中学校学区の他の物件を見る |
|---|
| 価格 | 万円 | ||
|---|---|---|---|
| 年利率 | % |
||
| ボーナス払い | 返済年数 | ||
| 頭金 | 直接入力する | 万円 | |

毎月のご返済額 |
ボーナス(×年2回) |
物件価格4,780万円 |
◆広々土地48.99坪の整形地!
◆築6年の築浅物件・カースペース2台!
◆吹抜が有るリビング18帖!床暖房付き!