コスモクラルテ西船橋 千葉県船橋市印内2丁目|4,580万円の中古マンション|分譲住宅や新築物件|株式会社優和住宅
| 価格 | 4,580万円値下がり ![]() |
||||
|---|---|---|---|---|---|
| 所在地 | 千葉県船橋市印内2丁目
この地域周辺の物件を見る |
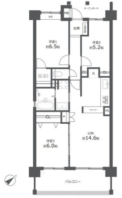
専有面積 | 70.8m2 | 築年月 | 2001年11月築 |
| 交通 |
京成本線 京成西船 徒歩10分
JR総武線 西船橋 徒歩15分 |
管理費等 | 7,690円 | 修繕積立金 | 10,710円 | 所在階/階数 | 3階/地上8階建 | バルコニー面積 | 12m² |
| 間取り | 3LDK (-) | ||||
| 特徴 |
|
|---|---|
| セールスコメント | 2013年に大規模修繕工事履歴あり、長期修繕計画ある管理体制良好なマンションです。周辺は教育施設・商業施設が揃っている暮らしやすく子育てしやすい閑静な住宅街エリアですよ。 |
| 採光面 | 南東 | 取引態様 | 仲介 |
|---|---|---|---|
| 現況 | 空家 | 引渡し | 2026年6月上旬 |
| 総戸数 | 98戸 | 構造 | RC造 |
| テラス面積 | - | 専用庭面積 | - |
| 駐車場 | 有:12,000円/月 | 駐輪場 | - |
| 建物権利 | - | 土地権利 | 所有権 |
| 用途地域 | 第一種中高層住居専用地域 - - | 管理態様 | 管理形態:委託(通勤) 管理組合:あり 管理会社:大和ライフネクスト |
| 情報更新日 | 2026年05月21日 | 次回更新日 | 2026年06月04日 |
| 小学校区 | 行田西小学校 (船橋市) 船橋市立行田西小学校学区の他の物件を見る |
中学校区 | 葛飾中学校 (船橋市) 船橋市立葛飾中学校学区の他の物件を見る |
|---|
| 価格 | 万円 | ||
|---|---|---|---|
| 年利率 | % |
||
| ボーナス払い | 返済年数 | ||
| 頭金 | 直接入力する | 万円 | |

毎月のご返済額 |
ボーナス(×年2回) |
物件価格4,580万円 |
◆新規リノベーション施工で新築のようなお部屋!
◆東南向きで陽当たり良好!
◆管理体制良好で共有部もキレイなマンション!