松戸市三矢小台3丁目 新築全2棟 A号棟 千葉県松戸市三矢小台3丁目|4,790万円の新築一戸建て|株式会社優和住宅
| 価格 | 4,790万円値下がり ![]() |
||||
|---|---|---|---|---|---|
| 所在地 | 千葉県松戸市三矢小台3丁目
この地域周辺の物件を見る |
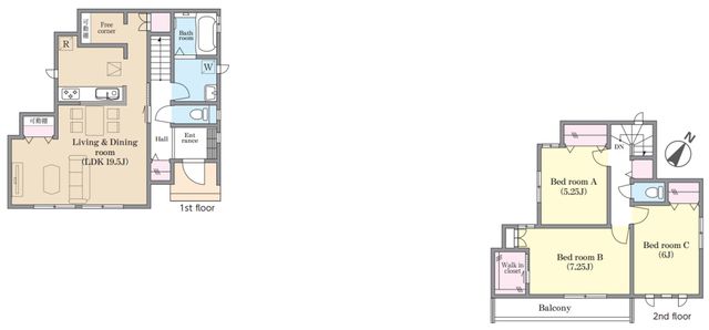
土地面積 | 126.45m² (38.25坪) | 建物面積 | 93.57m2 |
| 築年月 | 2026年3月築 | 間取り | 3LDK (-) | ||
| 交通 |
北総鉄道 矢切 徒歩12分
JR常磐線 松戸 バス9分 上矢切 停歩1分 |
||||
| 特徴 |
|
|---|---|
| セールスコメント | 大手ビルダー施工の全3区画新築戸建てが誕生!南東側に接道しているので陽当たり良好です!19帖超の広々したリビングダイニングキッチン♪車種によりますがカースペースも2台分あります! |
| 採光面 | 南東 | 構造/階数 | 木造/地上2階建 |
|---|---|---|---|
| 建ぺい率 | 50(%) | 容積率 | 200(%) |
| 駐車場 | 有 | 現況/引渡し | 空家/相談 |
| 土地権利 | 所有権 | 私道負担面積 | - |
| 接道状況 | 接道: 南東 公道 道路幅: 4m | 用途地域 |
近隣商業地域
|
| セットバック | - | 法令上の制限 | - |
| 地目 | 宅地 | 地勢 | |
| 建築確認番号 | 都市計画 | 市街化区域 | |
| 取引態様 | 仲介 | ||
| 情報更新日 | 2026年05月01日 | 次回更新日 | 2026年05月15日 |
| 小学校区 | 松戸市立矢切小学校 (千葉県松戸市) 千葉県松戸市立矢切小学校学区の他の物件を見る |
中学校区 | 第二中学校 (千葉県松戸市) 千葉県松戸市立第二中学校学区の他の物件を見る |
|---|
| 価格 | 万円 | ||
|---|---|---|---|
| 年利率 | % |
||
| ボーナス払い | 返済年数 | ||
| 頭金 | 直接入力する | 万円 | |

毎月のご返済額 |
ボーナス(×年2回) |
物件価格4,790万円 |
![]() |
![]() |
松戸市三矢小台3丁目
4790万円〜5390万円 |
◆大手ビルダー施工!全3区画の新築戸建て!残り2棟!
◆南東側道路で陽当たり良好!
◆広々リビング19帖超!カースペース2台分(車種による)