松戸市常盤平双葉町 築浅 千葉県松戸市常盤平双葉町 |4,780万円の中古一戸建て|株式会社優和住宅
| 価格 | 4,780万円値下がり ![]() |
||||
|---|---|---|---|---|---|
| 所在地 | 千葉県松戸市常盤平双葉町
この地域周辺の物件を見る |
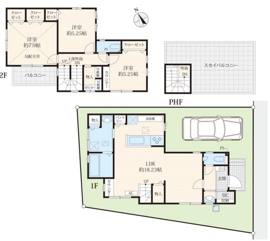
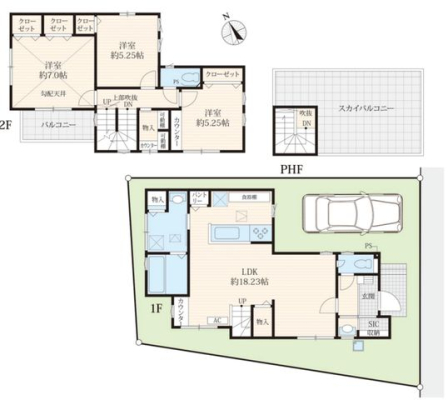
土地面積 | 101.82m² (30.8坪) | 建物面積 | 96.35m2 |
| 築年月 | 2024年2月築 | 間取り | 3LDK (-) | ||
| 交通 |
JR武蔵野線 新八柱 徒歩16分
京成松戸線 常盤平 徒歩13分 |
||||
| 特徴 |
|
|---|---|
| セールスコメント | 各居室しっかり広さのあるバランスの良い間取りが魅力的な物件です。周辺は教育施設・商業施設が揃っている暮らしやすく子育てしやすいエリア。前面道路の車通りが少ないのも子育て世帯には嬉しいポイントですね。 |
| 採光面 | 南西 | 構造/階数 | 木造/地上2階建 |
|---|---|---|---|
| 建ぺい率 | 50(%) | 容積率 | 100(%) |
| 駐車場 | 有 | 現況/引渡し | 空家/即時 |
| 土地権利 | 所有権 | 私道負担面積 | - |
| 接道状況 | 接道: 東 公道 道路幅: 4m | 用途地域 |
第一種低層住居専用地域
|
| セットバック | - | 法令上の制限 | - |
| 地目 | 宅地 | 地勢 | |
| 建築確認番号 | 都市計画 | 市街化区域 | |
| 取引態様 | 仲介 | ||
| 情報更新日 | 2026年05月26日 | 次回更新日 | 2026年06月09日 |
| 小学校区 | 松戸市立常盤平第三小学校 (千葉県松戸市) 千葉県松戸市立常盤平第三小学校学区の他の物件を見る |
中学校区 | 常盤平中学校 (千葉県松戸市) 千葉県松戸市立常盤平中学校学区の他の物件を見る |
|---|
| 価格 | 万円 | ||
|---|---|---|---|
| 年利率 | % |
||
| ボーナス払い | 返済年数 | ||
| 頭金 | 直接入力する | 万円 | |

毎月のご返済額 |
ボーナス(×年2回) |
物件価格4,780万円 |
◆耐震等級3などの住宅性能評価取得した地震に強い家!
◆住宅情報館施工で安心な建売住宅!
◆南側スペースあり陽当たり良好!