松戸市金ケ作 新築 千葉県松戸市金ケ作 |3,390万円の新築一戸建て|株式会社優和住宅
| 価格 | 3,390万円値下がり ![]() |
||||
|---|---|---|---|---|---|
| 所在地 | 千葉県松戸市金ケ作
この地域周辺の物件を見る |
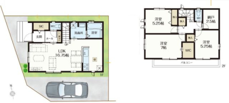
土地面積 | 91.22m² (27.59坪) | 建物面積 | 88.39m2 |
| 築年月 | 2025年9月築 | 間取り | 3LDK (-) | ||
| 交通 |
京成松戸線 五香 徒歩10分
京成松戸線 常盤平 徒歩22分 |
||||
| 特徴 |
|
|---|---|
| セールスコメント | 青空が広がる閑静な1種低層のエリアです。角地物件のため開放感があり日当たり良好です!リビング階段なので家族のコミュニケーションが取りやすく風通しの良い開放的な空間です。 |
| 採光面 | 南西 | 構造/階数 | 木造/地上2階建 |
|---|---|---|---|
| 建ぺい率 | 50(%) | 容積率 | 100(%) |
| 駐車場 | 有 | 現況/引渡し | 空家/相談 |
| 土地権利 | 所有権 | 私道負担面積 | - |
| 接道状況 | 接道: 西 公道 道路幅: 9.3m 接道: 南 私道 道路幅: 4m |
用途地域 |
第一種低層住居専用地域
|
| セットバック | - | 法令上の制限 | - |
| 地目 | 宅地 | 地勢 | |
| 建築確認番号 | 都市計画 | 市街化区域 | |
| 取引態様 | 仲介 | ||
| 情報更新日 | 2025年11月19日 | 次回更新日 | 2025年12月03日 |
| 小学校区 | 松戸市立金ケ作小学校 (千葉県松戸市) 千葉県松戸市立金ケ作小学校学区の他の物件を見る |
中学校区 | () |
|---|
| 価格 | 万円 | ||
|---|---|---|---|
| 年利率 | % |
||
| ボーナス払い | 返済年数 | ||
| 頭金 | 直接入力する | 万円 | |

毎月のご返済額 |
ボーナス(×年2回) |
物件価格3,390万円 |
◆開放感が有る南西角地!
◆ZEH水準の省エネ住宅!
◆住宅性能表示にて7項目の最高等級取得!