市川市宮久保1丁目 新築 全2棟 千葉県市川市宮久保1丁目|5,490万円の新築一戸建て|株式会社優和住宅
| 価格 | 5,490万円 ![]() |
||||
|---|---|---|---|---|---|
| 所在地 | 千葉県市川市宮久保1丁目
この地域周辺の物件を見る |
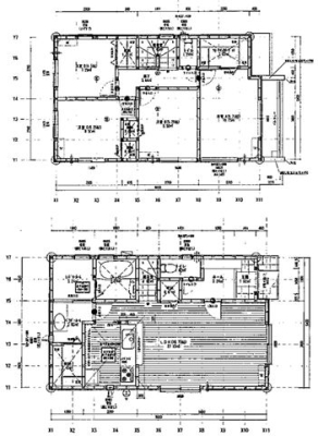
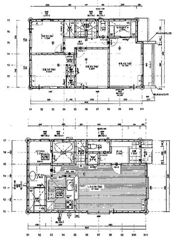
土地面積 | 120.96m² (36.59坪) | 建物面積 | 95.58m2 |
| 築年月 | 2025年11月築 | 間取り | 4LDK (-) | ||
| 交通 |
京成本線 菅野 徒歩22分
JR総武線 本八幡 バス6分 昭和学院[高塚線] 停歩9分 |
||||
| 特徴 |
|
|---|---|
| セールスコメント | 桜並木が美しい真間川沿いの住宅街。風致地区ならではの落ち着いた住環境です。商店街や本八幡駅行きのバス停も近く生活便利です。南西側の前面道路は日当たり・通風ともに良好。幅員も6mでゆとりがあります。 |
| 採光面 | - | 構造/階数 | 木造/地上2階建 |
|---|---|---|---|
| 建ぺい率 | 40(%) | 容積率 | 80(%) |
| 駐車場 | - | 現況/引渡し | -/2025年11月 |
| 土地権利 | 所有権 | 私道負担面積 | - |
| 接道状況 | - | 用途地域 |
第一種低層住居専用地域
|
| セットバック | - | 法令上の制限 | - |
| 地目 | 田 | 地勢 | |
| 建築確認番号 | 第ー号ほか | 都市計画 | 市街化区域 |
| 取引態様 | 仲介 | ||
| 情報更新日 | 2025年11月15日 | 次回更新日 | 2025年11月29日 |
| 小学校区 | 市川市立百合台小学校 (千葉県市川市) 千葉県市川市立百合台小学校学区の他の物件を見る |
中学校区 | 第三中学校 (千葉県市川市) 千葉県市川市立第三中学校学区の他の物件を見る |
|---|
| 価格 | 万円 | ||
|---|---|---|---|
| 年利率 | % |
||
| ボーナス払い | 返済年数 | ||
| 頭金 | 直接入力する | 万円 | |

毎月のご返済額 |
ボーナス(×年2回) |
物件価格5,490万円 |
![]() |
![]() |
市川市宮久保1丁目
5490万円 |
◆真間川沿いの閑静な住宅街
◆南西道路で日当たり良好
◆敷地南東側も通路になっており、開放感があります