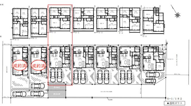
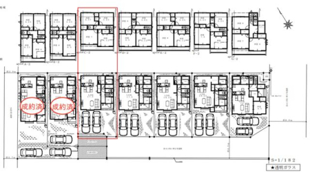
市川市大和田5丁目 新築 C号棟 千葉県市川市大和田5丁目|5,490万円の新築一戸建て|株式会社優和住宅
| 価格 | 5,490万円値下がり ![]() |
||||
|---|---|---|---|---|---|
| 所在地 | 千葉県市川市大和田5丁目
この地域周辺の物件を見る |
土地面積 | 113.18m² (34.23坪) | 建物面積 | 97.29m2 |
| 築年月 | 2025年7月築 | 間取り | 4LDK (-) | ||
| 交通 |
JR総武線 本八幡 徒歩21分
バス6分 鶴指 停歩3分 |
||||
| 特徴 |
|
|---|---|
| セールスコメント | 南側道路で陽当たり良好です。周辺は教育施設・商業施設が揃っている暮らしやすく子育てしやすいエリア。前面道路の車通りが少ないのも子育て世帯には嬉しいポイントですね。 |
| 採光面 | - | 構造/階数 | 木造/地上2階建 |
|---|---|---|---|
| 建ぺい率 | 50(%) | 容積率 | 100(%) |
| 駐車場 | - | 現況/引渡し | 空家/相談 |
| 土地権利 | 所有権 | 私道負担面積 | - |
| 接道状況 | - | 用途地域 |
第一種低層住居専用地域
|
| セットバック | - | 法令上の制限 | - |
| 地目 | 宅地 | 地勢 | |
| 建築確認番号 | 都市計画 | 市街化区域 | |
| 取引態様 | 仲介 | ||
| 情報更新日 | 2025年11月07日 | 次回更新日 | 2025年11月21日 |
| 小学校区 | 市川市立鶴指小学校 (千葉県市川市) 千葉県市川市立鶴指小学校学区の他の物件を見る |
中学校区 | 第八中学校 (千葉県市川市) 千葉県市川市立第八中学校学区の他の物件を見る |
|---|
| 価格 | 万円 | ||
|---|---|---|---|
| 年利率 | % |
||
| ボーナス払い | 返済年数 | ||
| 頭金 | 直接入力する | 万円 | |

毎月のご返済額 |
ボーナス(×年2回) |
物件価格5,490万円 |
![]() |
![]() |
市川市大和田5丁目
5490万円〜6590万円 |
◆全7棟キレイな街並みの分譲地の登場です!
◆耐震等級3などの住宅性能評価取得した地震に強い家!
◆大手ハウスビルダー施工で安心な建売住宅!