市川市大野町2丁目 新築 千葉県市川市大野町2丁目|4,290万円の新築一戸建て|株式会社優和住宅
| 価格 | 4,290万円 ![]() |
||||
|---|---|---|---|---|---|
| 所在地 | 千葉県市川市大野町2丁目
この地域周辺の物件を見る |
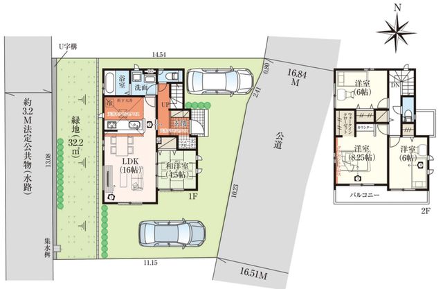
土地面積 | 165.09m² (49.93坪) | 建物面積 | 100.19m2 |
| 築年月 | 2025年11月築 | 間取り | 4LDK (-) | ||
| 交通 |
JR武蔵野線 市川大野 徒歩12分
北総鉄道 秋山 徒歩29分 |
||||
| 特徴 |
|
|---|---|
| セールスコメント | 東側公道、西側と南側にスペースあり開放感のある陽光溢れる立地が魅力です。周辺は教育施設・商業施設が揃っている暮らしやすく子育てしやすいエリア。前面道路の車通りが少ないのも子育て世帯には嬉しいポイント。 |
| 採光面 | 南 | 構造/階数 | 木造/地上2階建 |
|---|---|---|---|
| 建ぺい率 | 50(%) | 容積率 | 100(%) |
| 駐車場 | 有 | 現況/引渡し | -/相談 |
| 土地権利 | 所有権 | 私道負担面積 | - |
| 接道状況 | 接道: 東 公道 道路幅: 16.5m | 用途地域 |
指定なし
|
| セットバック | - | 法令上の制限 | - |
| 地目 | 雑種地 | 地勢 | |
| 建築確認番号 | 第HPAー25−07278−1号 | 都市計画 | 市街化調整区域 |
| 取引態様 | 仲介 | ||
| 情報更新日 | 2025年11月19日 | 次回更新日 | 2025年12月03日 |
| 小学校区 | 市川市立大柏小学校 (千葉県市川市) 千葉県市川市立大柏小学校学区の他の物件を見る |
中学校区 | 第五中学校 (千葉県市川市) 千葉県市川市立第五中学校学区の他の物件を見る |
|---|
| 価格 | 万円 | ||
|---|---|---|---|
| 年利率 | % |
||
| ボーナス払い | 返済年数 | ||
| 頭金 | 直接入力する | 万円 | |

毎月のご返済額 |
ボーナス(×年2回) |
物件価格4,290万円 |
◆耐震等級3などの住宅性能評価取得した地震に強い家!
◆ZEH水準のハイクオリティ建売住宅!
◆嬉しい駐車2台可能スペース!