松戸市高塚新田 土地 千葉県松戸市高塚新田 |2,080万円の土地|株式会社優和住宅
| 価格 | 2,080万円値下がり ![]() |
||||
|---|---|---|---|---|---|
| 所在地 | 千葉県松戸市高塚新田
この地域周辺の物件を見る |
土地面積 | 160.03m² (48.4坪) | 坪単価 | 42.97万円 /坪 |
| 交通 |
JR武蔵野線 市川大野 徒歩22分
JR総武線 本八幡 バス16分 高塚団地 停歩4分 |
建ぺい率 | 50 % | 容積率 | 100 % |
| 特徴 |
|
|---|---|
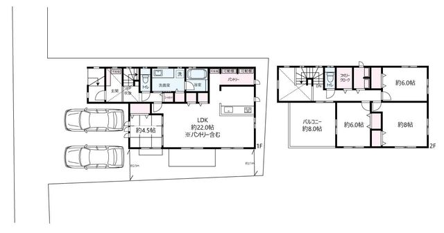
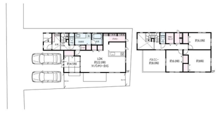
| セールスコメント | 自然災害リスクの少ない高台平坦地。48坪の大型敷地は間取りプランの自由度も高いです。建築条件はございませんので、お好みのハウスメーカーで理想の注文住宅はいかがですか。すぐにご見学も可能です。 |
| 建築条件 | - | 土地権利 | 所有権 |
|---|---|---|---|
| 現況/引渡し | 更地/相談 | 接道状況 | 接道: 西 私道 道路幅: 2.8m |
| 私道負担面積 | あり 160m² | セットバック | - |
| 地勢 | 地目 | 宅地 | |
| 用途地域 | 第一種低層住居専用地域 | 都市計画 | 市街化区域 |
| 法令上の制限 | - | 国土法届出 | - |
| 取引態様 | 売主 | ||
| 情報更新日 | 2025年12月14日 | 次回更新日 | 2025年12月28日 |
| 小学校区 | 松戸市立梨香台小学校 (千葉県松戸市) 千葉県松戸市立梨香台小学校学区の他の物件を見る |
中学校区 | 東国分中学校 (千葉県市川市) 千葉県市川市立東国分中学校学区の他の物件を見る |
|---|
| 価格 | 万円 | ||
|---|---|---|---|
| 年利率 | % |
||
| ボーナス払い | 返済年数 | ||
| 頭金 | 直接入力する | 万円 | |

毎月のご返済額 |
ボーナス(×年2回) |
物件価格2,080万円 |
◆160平米の使いやすい整形敷地
◆更地渡しですので、すぐに建築可能です
◆建築条件なし・注文住宅用地として最適です